
The Williamsburg City County last week unanimously approved the construction of a fourth softball field at Kiwanis Park.
The field will include associated fencing, dugouts, scoreboard, lights, press box and bleachers.
Several residents from the Longhill Woods subdivision, located behind the tree line of the park, spoke at the City Council meeting, voicing concerns over the construction and providing comment.
“It’s a product of the Tourism Development fund that we put together some years ago to build new tourism product to support our tax base, and this is the first big project right out of the gate,” said Mayor Doug Pons.
“I’m very pleased that the neighborhood is fully supportive of that,” he added, speaking of the residents of Longhill Woods who commented earlier.
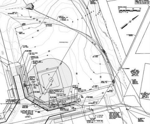
The city’s Planning Commission recommended the approval to the City Council of the special use permit to build a fourth softball field and associated facilities at Kiwanis Park as shown on the site plan.
The date of construction has yet to be determined, and the the next City Council meeting is scheduled for Dec. 7.

YOU MIGHT ALSO WANT TO CHECK OUT THESE STORIES:
- Virginia imposes new COVID-19 measures, including limit of 25 for in-person gatherings – it was 250 – and alcohol cutoff time
- The Highland Park neighborhood will soon have free broadband. Here’s the deal
- Here’s how you can chime in if you have thoughts about James City County’s Parks & Rec
- 25 years equals $1M: That’s how much has been raised so far by this association for this local nonprofit

